
EN
— 產品中心 —
全國服務電話 075528990558 地址:深圳市龍崗區南聯向銀路71號匯川科技園華鵬艾偉大廈A棟
激光焊接振鏡帶水冷是指振鏡式激光焊接機在焊接過程中,通過水冷系統對振鏡進行冷卻,以防止因高溫而導致的設備故障或誤差。 振鏡式激光焊接機在焊接過程中,通過告訴移動掃描鏡片代……
產品詳情
激光焊接振鏡帶水冷是指振鏡式激光焊接機在焊接過程中,通過水冷系統對振鏡進行冷卻,以防止因高溫而導致的設備故障或誤差。
振鏡式激光焊接機在焊接過程中,通過告訴移動掃描鏡片代替二維工作臺,可實現程序的瞬時多點焊接,從而提高生產效率和靈活性。然而,這種高效率的焊接過程會產生大量的熱量,如果不及時進行冷卻,會導致振鏡出現熱變形,影響焊接質量,甚至會導致設備故障。
因此,為了確保激光焊接的精度和穩定性,通常會配備水冷系統對振鏡進行冷卻。水冷系統通常由水冷機、水管和接頭組成。水冷機一般可采用一體化的3P水冷機,溫差在±0.1℃范圍內。水管和接頭需要具有耐高壓、耐高溫、耐腐蝕等特性,以確保長期穩定的使用。
需要注意的是,不同型號和品牌的振鏡式激光焊接機所需要的水冷系統可能存在差異,因此在進行選購或使用時,需要根據自己的設備型號和實際情況進行選配和使用。
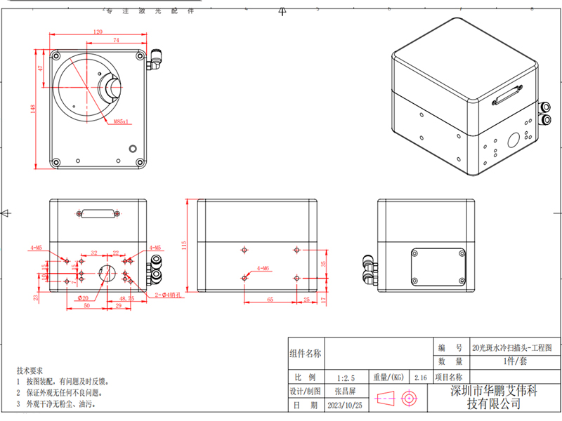
激光焊接振鏡水冷圖紙

激光焊接振鏡不帶水冷圖紙

以上只是激光焊接振鏡簡單介紹,如需要更詳細的激光焊接振鏡資料信息,請聯系華鵬艾偉對應銷售人員。
相關推薦
華鵬艾偉是一家專業的激光打標機配件、激光焊接機配件、激光切割機配件等激光全套配件綜合解決方案品牌供應商和批發商!
地址:深圳市龍崗區南聯向銀路71號匯川科技園華鵬艾偉大廈A棟 TEL:0755-28990558